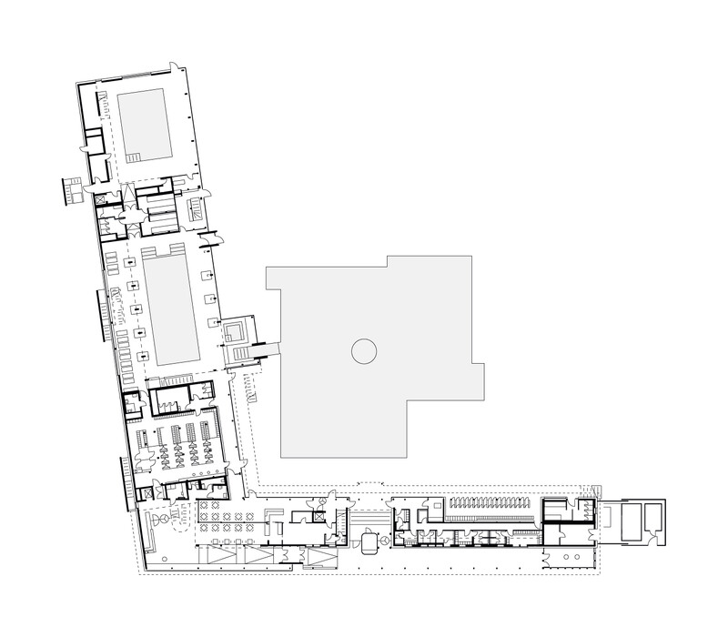
163 Jahre Geschichte verleihen dem Mineralbad Berg Alleinstellungmerkmal - und auch der Kult der Stuttgarter um das Bad ist groß. Im Fokus der Sanierung des ältesten Stuttgarter Mineralbades stand, den besonderen Charakter des Bades zu wahren und die Neugestaltung in Anlehnung an die 50er Jahre zeitgemäß zu interpretieren. Die Herausforderung bei der gestalterischen und technischen Sanierung lag darin, die richtige Balance zwischen Erhalt, Erneuerung und Ergänzung zu finden. So blieb der L-förmige Baukörper mit Nord- und Ostflügel, in den das quadratische Außenbecken mit Seecharakter eingebettet liegt, in seiner ursprünglichen Form erhalten und wurde bis auf den Rohbau zurückgeführt. Lediglich das alte Bewegungsbad im Osten der Anlage wurde abgerissen und durch einen Anbau an die Badehalle, der die charakteristische Gebäudestruktur aufgreift, ersetzt. Das Foyer am Knotenpunkt der Gebäudeachsen ist nach wie vor die zentrale Schnittstelle im Bad. Offen und transparent gestaltet, gibt die Eingangshalle den Blick zum Außenbecken und in den Garten frei, sodass eine weitläufige und luftige Atmosphäre im Innenraum entsteht. Die Badehalle wurde im Erdgeschoss und auch im Obergeschoss durch eine Galerie mit Liegeflächen erweitert. Gestaltgebendes Element in der Badehalle ist eine neue Holzlamellendecke, die sich in sanftem Schwung von der Wandfläche über die Decke bis hin zur Glasfassade schwingt. Sie verleiht dem gesamten Innenraum eine warme Atmosphäre und sorgt für eine gute Akustik. Dem Innenraum verleihen ausgewählte Materialien und ein stimmiges Farbkonzept eine angenehme Atmosphäre und sorgen für eine hohe Aufenthaltsqualität im Bad.

Auszeichnungen
Staatspreis Baukultur Baden-Württemberg 2024 - Anerkennung
Staatspreis Baukultur Baden-Württemberg 2024 - Nominierung
Beispielhaftes Bauen 2019-2023
Deutscher Architekturpreis 2021 - Engere Wahl
Iconic Awards for Innovative Architecture 2021 - Winner
Heinze ArchitektenAward 2021 - Shortlist

Grundriss Erdgeschoss