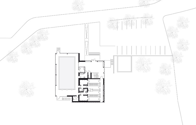
Das im Jahr 1972 erbaute Lochenbad liegt südlich von Balingen im Ortsteil Weilstetten. Die Planungsleistung beinhaltete die umfassende Sanierung des bestehenden Hallenbades. Dafür wurde das Gebäude auf den Rohbau zurückgeführt und im Grundriss neu organisiert. Es entstehen geschlossene und offene Bereiche. Großzügige Glasöffnungen in der Fassade gewähren Ausblicke ins Freie. Eine große Öffnung in der Schwimmhalle ermöglicht einen Panoramablick in die Landschaft. Die Halle blieb in ihrer Lage und Funktion erhalten und wurde komplett saniert. Decken, Böden und Wände wurden mit neuen Oberflächen versehen. Die veraltete Technik wurde auf den neuesten Stand gebracht, darunter Heizung, Bädertechnik, Wasseraufbereitung, Lüftungs- und Sanitäranlage. Die Sanierung erfolgte unter den neuesten Anforderungen an die Energieeinsparung. Das Lochenbad wurde bisher hauptsächlich von Vereinen und Schulen genutzt. Eine zusätzliche Nebennutzung mit öffentlichem Badebetrieb wird eingerichtet.

Grundriss Erdgeschoss