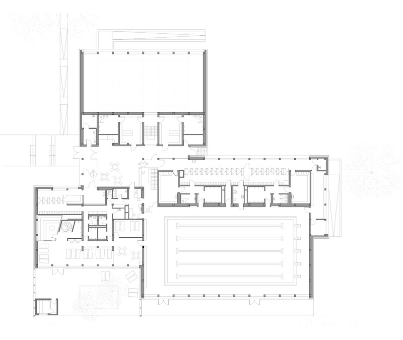
Bei der Sanierung von Hallenbad und Sporthalle in Mengen blieb die ursprüngliche Bausubstanz aus den 70er Jahren weitestgehend erhalten. Das bestehende Gebäude wurde bis auf den Rohbau rückgeführt, lediglich im Saunabereich kam es zu formalen Eingriffen. Die Neugestaltung der Gebäudehülle und des Innenraumes mit ansprechenden Materialien, einem neuen Farbkonzept sowie geringfügigen baulichen Veränderungen sorgt für eine spürbar höhere Aufenthaltsqualität im Bad. Großer Wert wurde dabei auf eine maximale Tageslichtnutzung gelegt – großflächige Fassadenverglasungen sowie Innentrennwände aus Glas sorgen für eine hohe Transparenz und schaffen Blickachsen, welche die einzelnen Funktionsbereiche miteinander verbinden.

Grundriss Erdgeschoss