Ein temporäres, modulares und rückbaubares Gebäude – dieser innovative Planungsansatz hat das Hochbauamt der Landeshauptstadt Stuttgart überzeugt. Denn diese Eigenschaften sowie die nahezu komplette Vorfertigung im Werk ermöglichen es, das Bad an verschiedenen Standorten im Stuttgarter Stadtgebiet zu errichten, abzubauen, umzuziehen und erneut aufzustellen – und das in kurzer Zeit. Hintergrund für diese Anforderung ist es, den Bürgern Ersatzwasserflächen bereitzustellen, während Bäder saniert oder neu gebaut werden.

Designed for disassembly – built to last
Das architektonische Konzept folgt dem Prinzip „Designed for disassembly – built to last“ – das bedeutet ein vollwertiges Hallenbad mit einem kompletten Lebenszyklus zu errichten, das bei Bedarf an mehreren Standorten zum Einsatz kommen kann. Dies gelingt durch eine modulare Holzbauweise mit hohem Vorfertigungsgrad, die kurze Montagezeiten ermöglicht und den CO₂-Fußabdruck deutlich reduziert. Das Projekt erfüllt damit zentrale Anforderungen des EU-Green-Deals sowie der EU-Taxonomie und orientiert sich am Cradle-to-Cradle-Prinzip.

Holz als Baustoff der Zukunft
Neben der Umzugsfähigkeit überzeugt das Projekt auch durch seinen Beitrag zur Nachhaltigkeit: Der durchgängige Einsatz von Holz – von der tragenden Konstruktion über Fassaden bis hin zur Unterkonstruktion des Edelstahlbeckens – reduziert klimaschädliche Emissionen und ermöglicht einen hohen Recyclinggrad. Sämtliche Module und nahezu alle Bauteile sind so gestaltet, dass sie nach ihrem Einsatz weiterverwendet werden können – ein echtes Zukunftsmodell für den öffentlichen Bäderbau.

Zum Baustart wurde im SWR Fernsehen ein Beitrag ausgestrahlt (Start bei 9.43):
www.ardmediathek.de

Einen Einblick in den aktuellen Baufortschritt gibt es hier:
bautvplus.de/zeitraffer

Und so wird das Bad aussehen, wenn es fertig gestellt ist:

Funktionalität und Gestaltung
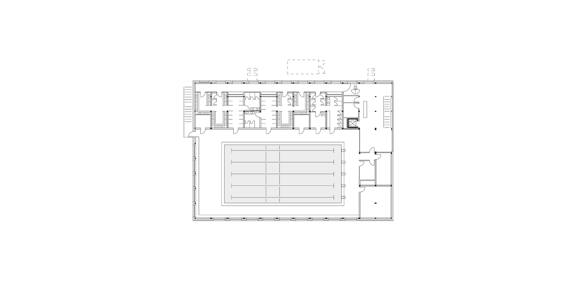
Das kompakte Gebäude ist zweigeschossig angelegt: Der Zugang zum Bad, die Schwimmbadtechnik sowie die Personalräume befinden sich im Erdgeschoss. Im Obergeschoss ist die Badehalle mit Umkleiden und der Sanitärbereich untergebracht. Ausgestattet ist die Badehalle mit einem 25-Meter-Becken aus Edelstahl, fünf Bahnen und einem Teil-Hubboden. Dadurch ist der Schwimmbetrieb für mehrere Schulklassen parallel möglich. Auch der Innenausbau, die Möblierung sowie die technische Ausstattung der einzelnen Modulräume werden im Werk vorgenommen und über Schnittstellen vor Ort miteinander verbunden. Die Modulbauweise wird bewusst als architektonisches Gestaltungselement eingesetzt. Sie spiegelt sich zum einen in einer klaren Bauform, die aus den Einzelmodulen entwickelt wurde, und zum anderen in der Fassadengestaltung: Unterschiedliche Grautöne in der Holzverkleidung bilden die Modularität nach außen ab und verleihen dem Gebäude ein authentisches Erscheinungsbild.

Ernst Ulrich Tillmanns: "Für uns als Architekten mit Schwerpunkt auf dem Bäderbau ist es eine spannende Aufgabe, die gestalterischen, funktionalen und technischen Anforderungen eines Bades auf ein Modulbaukonzept zu übertragen. Wir sehen große Chancen darin, Themen wie Vorfertigung und Kreislaufwirtschaft in den Bäderbau zu integrieren."

Erster Standort für das modulare Hallenbad wird der Stuttgarter Stadtteil Zuffenhausen sein. Die Fertigstellung ist für Mitte 2026 geplant. Einige Jahre später soll das modulare Bad in Möhringen und zuletzt am Zielstandort in Untertürkheim aufgebaut werden.

Entwickelt wurde das zukunftsweisende Konzept von der POOL out of the BOX GmbH, einem Spezialisten für modularen und seriellen Hallenschwimmbadbau. 4a Architekten und das Schweizer Holzbauunternehmen Blumer Lehmann sowie weitere erfahrene Partner aus dem Bäderbau sind Teil des Planungsteams.

Hallenbad ist Teil des IBA'27-Netzes
Das Modulbad überzeugte die Jury der Internationalen Bauausstellung 2027 StadtRegion Stuttgart (IBA’27) mit seinem zukunftsweisenden Konzept und wurde daher in das IBA’27-Netz aufgenommen. Das Projekt erfüllt in besonderem Maße den Leitgedanken der IBA’27, „Ungewohntes und Neues möglich und sichtbar zu machen“: Ein Hallenbad in Holzmodulbauweise ist bislang einzigartig.