Das Main Bad Bornheim ersetzt das bisherige Panoramabad am Bornheimer Hang und überzeugt durch kompakte Architektur, durchdachte Funktionalität und atmosphärische Gestaltung – bei ressourcenschonender und wirtschaftlicher Betriebsweise. In direkter Nachbarschaft zur Eissporthalle entwickelten 4a Architekten als Generalplaner einen dreigeschossigen Baukörper, der sich kompakt in die bestehende städtebauliche Struktur einfügt und den verfügbaren Raum effizient nutzt. Die klare, reduzierte Kubatur minimiert die Gebäudehülle im Verhältnis zum Volumen und trägt so wesentlich zur Reduktion von Wärmeverlusten bei. Gestalterisch verleihen geschmeidige Rundungen und ein Fassadeneinschnitt im Eingangsbereich der dreieckigen Grundform Dynamik. Die frische Farbgebung der Lamellenverkleidung im Erd- und Obergeschoss sorgt für Lebendigkeit und betont zugleich die Eingangssituation. Aufgrund schwieriger Bodenverhältnisse wurde im Main Bad auf eine aufwändige, energieintensive Unterkellerung verzichtet – ein gestalterisch wie funktional eher ungewöhnlicher Ansatz: Die Technikräume befinden sich im Erdgeschoss, während die Badehalle im ersten Obergeschoss untergebracht ist. Diese Lage ermöglicht den Badegästen einen freien Blick ins Grüne und sorgt für ein lichtdurchflutetes Badeerlebnis mit Panoramaqualität.

Vielfältige Wasserwelten für jedes Alter
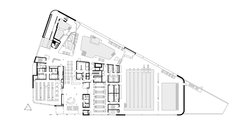
Das neue Main Bad bietet rund 900 Quadratmeter Wasserfläche für Freizeit, Sport und Erholung. Die Freizeitbadehalle wartet mit zahlreichen Attraktionen auf: Ein Erlebnisbecken mit Wasserpilz und Warmsprudelbecken, ein Kleinkinderbereich mit zahlreichen Attraktionen sowie ein gestalterisch an eine Dschungellandschaft angelehnter Spraypark, der zum Spielen einlädt. Eine Breitwellenrutsche und eine innenliegende Röhrenrutsche sorgen für zusätzlichen Badespaß – letzteres auch mit Blick auf Energieeffizienz, da auf eine Außenrutsche verzichtet wurde. Ein weiteres Highlight: Bei geöffneten Schiebeelementen der großflächigen Glasfassade lässt sich der Außenraum unmittelbar in das Badeerlebnis integrieren.

Reduziert, funktional, klar – der Sportbereich im Main Bad
In der Sportbadehalle befindet sich ein 25-Meter-Becken mit sechs Bahnen, einer Ein- bzw. Drei-Meter-Sprunganlage und einer teils variablen Wassertiefe – geeignet für Freizeitschwimmer, Schulklassen und den Vereinssport. Ein separates Lehrschwimmbecken mit breiter Einstiegstreppe rundet das Angebot ab. Die Gestaltung der Halle ist auf das Wesentliche reduziert: klare Formen, ein zurückhaltendes Materialkonzept und schlichte Blautöne schaffen eine ruhige, konzentrierte Atmosphäre. Große Fensterflächen öffnen den Blick in die umgebende Natur. Sitzbänke entlang der Wände laden zum Verweilen und Beobachten ein. Eine raumhohe Verglasung trennt Erlebnis- und Sportbadehalle optisch transparent, aber akustisch wirksam – für konzentriertes Schwimmen und ungestörtes Lernen.

Durchdacht gestaltet – die Saunalandschaft
Im Obergeschoss befindet sich die großzügige Saunalandschaft mit fünf verschiedenen Saunen: ein Sanarium, zwei finnische Saunen im Innen- und Außenraum, eine Entspannungssauna und ein Dampfbad. Ein an den Wänden begrüntes Atrium sorgt für natürliche Atmosphäre, Tageslicht und hohe Aufenthaltsqualität. Ruhe- und Kaminzonen, ein Gastronomiebereich sowie ein Außenbereich mit Tauchbecken, Kaltduschen und Sonnenterrasse machen das Angebot vielseitig. Im Dachgeschoss befindet sich zudem ein weiterer Ruheraum mit Ausblick auf die Umgebung.

Reduziert, farbintensiv, identitätsstiftend
Der Entwurf zeichnet sich durch eine klare, reduzierte Formensprache aus. Außen wie innen wurde bewusst auf Materialien wie Sichtbeton oder Holz verzichtet. Stattdessen dominieren Fliesen, verputzte Flächen und akustisch wirksame Oberflächen, die nicht nur gestalterisch ruhig wirken, sondern sich auch besonders gut reinigen und instand halten lassen. Das Farbkonzept setzt auf kräftige Blau-, Grün- und Gelbtöne, die für Lebendigkeit sorgen.

Nachhaltigkeit als integraler Bestandteil
Das Main Bad überzeugt nicht nur architektonisch, sondern auch ökologisch. Bereits die kompakte, dreigeschossige Kubatur trägt zur Energieeffizienz des Gebäudes bei, da sie die Gebäudehülle im Verhältnis zum Volumen reduziert und dadurch Wärmeverluste minimiert. Öffnungen und Fassadenflächen sind funktional begründet und im Hinblick auf Tageslichtnutzung, Energieeffizienz und thermische Performance optimiert. Dachoberlichter führen natürliches Licht tief ins Gebäudeinnere, verbessern die Aufenthaltsqualität und reduzieren den Bedarf künstlicher Beleuchtung; zugleich ermöglichen sie passive solare Energiegewinne. Ein umfassendes Energiekonzept sorgt für einen ressourcenschonenden und wirtschaftlichen Betrieb. 450 Photovoltaikmodule auf dem Dach erzeugen jährlich bis zu 150.000 kWh Strom. Ergänzt wird dies durch ein modernes Blockheizkraftwerk, Anlagen zur Wärmerückgewinnung aus Lüftung und Badewassertechnik sowie die spätere Möglichkeit, Abwärme der benachbarten Eissporthalle zu nutzen – die dafür notwendigen technischen Vorbereitungen wurden bereits umgesetzt. Zur Reduktion des Frischwasserverbrauchs wird gesammeltes Regenwasser für die Reinigung und Bewässerung der Außenanlagen eingesetzt. Ein integriertes Regenrückhaltesystem schützt bei Starkregen zudem das öffentliche Kanalnetz. Die Beleuchtung erfolgt nahezu ausschließlich über energieeffiziente LED-Leuchten, die Wartungsintervalle minimieren und eine lange Lebensdauer garantieren.

Grundriss Badeebene