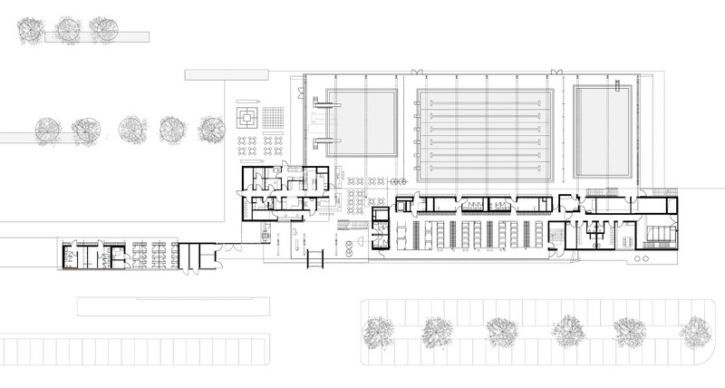
Das expressive, dynamische Gebäude integriert sich formal in das längliche Grundstück und korrespondiert gleichzeitig mit den unterschiedlichen Typologien der Umgebung: Wandscheiben, eine reduzierte Tragkonstruktion aus Stahl und Holz sowie großzügige Verglasungen bilden eine schlanke und durchlässige Bauform und verankern das Hallensportbad in seiner locker bebauten Umgebung. Im Innenraum sorgen frische Farben für eine freundliche und lebhafte Atmosphäre. Im Vordergrund der Planung stand neben der hohen gestalterischen Qualität eine wirtschaftliche Bauweise. Das Hallensportbad wurde nach ökologischen, ökonomischen und sozialen Gesichtspunkten optimiert, was einerseits den nachhaltigen Betrieb gewährleistet und andererseits ermöglichte, den engen Kostenrahmen einzuhalten.

Grundriss Erdgeschoss