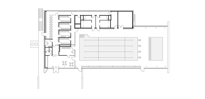
Das Hallenbad liegt am nördlichen Ortsrand der Stadt Riedlingen, in direkter Nachbarschaft zum Schulcampus mit Realschule und Gymnasium. In erster Linie wird das Bad von Schulen und Vereinen genutzt, teils ist es auch für die Öffentlichkeit zugänglich. Diese funktionale Ausrichtung spiegelt die klare und kompakte Gestaltung des Baukörpers, der sich behutsam in den Hang einbettet. Eine Außentreppe führt den Besucher vom Parkplatz nach oben zum Haupteingang. Vom Eingangsbereich im Erdgeschoss geben großzügige, raumhohe Glasfassaden den Blick in die Schwimmhalle frei und schaffen einen Dialog zwischen Innen- und Außenraum. Das Erdgeschoss ist klar organisiert und umfasst vier Zonen: Foyer, Umkleiden, Sanitärspange und Schwimmhalle. Ihren lichtdurchfluteten und weitläufigen Charakter erhält die Badehalle durch ihre nahezu dreiseitig raumhohe Verglasung. Von außen bildet das Erdgeschoss mit seiner einheitlich gestalteten Fassade einen markanten Baukörper. Durch den Materialwechsel zum Untergeschoss und den auskragenden Barfußgangs erhält das Erdgeschoss einen schwebenden Charakter.

Grundriss Erdgeschoss